Информация о доставки будет отображена для региона
Москва
Помощь покупателю

Мы ценим наших клиентов, и всегда готовы помочь. Вы всегда сможете найти ответы на интересующие вас вопросы.

Подробнее
Сертификаты

Мы строго контролируем весь процесс производства, от проектирования до выпуска готовой продукции. Каждый товар после изготовления проходит тестирование и сертификацию согласно ГОСТам.

Подробнее
Сроки

Гарантия доставки товара точно в срок. При нарушении сроков, мы вернем вам 0,1% от суммы покупки за каждый просроченный день.

Подробнее
Полезное

Краткое описание

Подробнее
8 (800) 301-40-66 8 (996) 702-88-66

Задвижка реечная 350x350

В наличии
16 100 руб.
Срок поставки — 3-7 дней
Гарантия 2 года
Укажие полное наименование и параметры товара
При покупке изделия важно указать его полное условное обозначение
Если вы не знаете полного наименования товара, офомите заказ и наш менеджер поможет вам подобрать необходимое
Условные обозначения
  • Описание
  • Характеристики
  • Габариты и присоединительные размеры

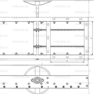
Реечные задвижки 350x350 применяются как вспомогательное оборудование для регулирования потока сыпучих грузов, зерна из накопительных баков, в зоны последующих технологических операций. Реечные задвижки 350x350 часто применяются на распределительных конвейерах (скребковый цепной конвейер). Сферы применения реечных задвижек: зерноперерабатывающая, пищевая, мукомольная, химическая, строительная. В зависимости от сферы применения реечных задвижек, мы изготавливаем их из чёрного металла, нержавеющего и оцинкованного металла. Задвижки на нашем производстве изготавливаются из 3-5 мм стали. Металл гнут на ЧПУ станке и режут лазером, что обеспечивает высокую надёжность и точность изготовления. В качестве направляющих на производстве ставят роликовые подшипники – это гарантирует более лёгкое перемещение ножа, чем на задвижках, где нож скользит по металлу. По индивидуальному запросу можем изготовить с любым размером поперечного сечения. Задвижки могут быть изготовлены с переходом на круглое сечение.

Задвижка реечная 350x350 — Габаритные размеры
Задвижка реечная 350x350 — Габаритные размеры
b a B A L
350 350 420 570 870
Вы искали

Задвижка реечная 350x350
16 100руб.
Задвижка реечная 350x350 О товаре
Насос UNIPUMP ECO MAXI 16-144
0руб.
Насос UNIPUMP ECO MAXI 16-144 О товаре
Задвижка реечная 300x300
14 950руб.
Задвижка реечная 300x300 О товаре
Категория размещения — адаптированность механизма для использования в определенном месторасположении.
Категория 1 — эксплуатация на открытом воздухе.
Категория 2 — эксплуатация под навесом или в помещениях, где колебания влажности воздуха не сильно отличаются от колебаний на открытом воздухе.
Категория 3 — эксплуатация в помещениях со значительно меньшими колебаниями температуры и влажности, чем на открытом воздухе.
Категория 4 — эксплуатация в закрытых обогреваемых и вентилируемых помещениях.
Категория 5 — эксплуатация в помещениях с повышенной влажностью.
Ознакомиться с условиями отсрочки
платежа вы можете позвонив нам по
телефону: 8 (800) 100-71-44.