Информация о доставки будет отображена для региона
Москва
Помощь покупателю

Мы ценим наших клиентов, и всегда готовы помочь. Вы всегда сможете найти ответы на интересующие вас вопросы.

Подробнее
Сертификаты

Мы строго контролируем весь процесс производства, от проектирования до выпуска готовой продукции. Каждый товар после изготовления проходит тестирование и сертификацию согласно ГОСТам.

Подробнее
Сроки

Гарантия доставки товара точно в срок. При нарушении сроков, мы вернем вам 0,1% от суммы покупки за каждый просроченный день.

Подробнее
Полезное

Краткое описание

Подробнее
8 (800) 301-40-66 8 (996) 702-88-66

Задвижка реечная 300x300 с приводом

В наличии
37 950 руб.
Срок поставки — 3-7 дней
Гарантия 2 года
Укажие полное наименование и параметры товара
При покупке изделия важно указать его полное условное обозначение
Если вы не знаете полного наименования товара, офомите заказ и наш менеджер поможет вам подобрать необходимое
Условные обозначения
  • Описание
  • Характеристики
  • Габариты и присоединительные размеры

Реечные задвижки 300x300 с приводом применяются как вспомогательное оборудование для регулирования потока сыпучих грузов, зерна из накопительных баков, в зоны последующих технологических операций. Реечные задвижки 300x300 с приводом часто применяются на распределительных конвейерах (скребковый цепной конвейер). Сферы применения реечных задвижек: зерноперерабатывающая, пищевая, мукомольная, химическая, строительная. В зависимости от сферы применения реечных задвижек, мы изготавливаем их из чёрного металла, нержавеющего и оцинкованного металла. Задвижки на нашем производстве изготавливаются из 3-5 мм стали. Металл гнут на ЧПУ станке и режут лазером, что обеспечивает высокую надёжность и точность изготовления. В качестве направляющих на производстве ставят роликовые подшипники – это гарантирует более лёгкое перемещение ножа, чем на задвижках, где нож скользит по металлу. По индивидуальному запросу можем изготовить с любым размером поперечного сечения. Задвижки могут быть изготовлены с переходом на круглое сечение.

Мощность электродвигателя0.55
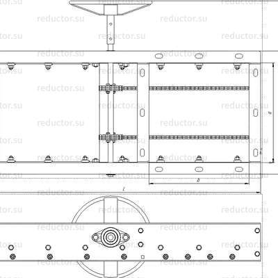
Задвижка реечная 300x300 с приводом — Габаритные размеры
Задвижка реечная 300x300 с приводом — Габаритные размеры
b a B A L
300 300 370 520 820
Вы искали

Категория размещения — адаптированность механизма для использования в определенном месторасположении.
Категория 1 — эксплуатация на открытом воздухе.
Категория 2 — эксплуатация под навесом или в помещениях, где колебания влажности воздуха не сильно отличаются от колебаний на открытом воздухе.
Категория 3 — эксплуатация в помещениях со значительно меньшими колебаниями температуры и влажности, чем на открытом воздухе.
Категория 4 — эксплуатация в закрытых обогреваемых и вентилируемых помещениях.
Категория 5 — эксплуатация в помещениях с повышенной влажностью.
Ознакомиться с условиями отсрочки
платежа вы можете позвонив нам по
телефону: 8 (800) 100-71-44.